TOTAL WHITE 1_

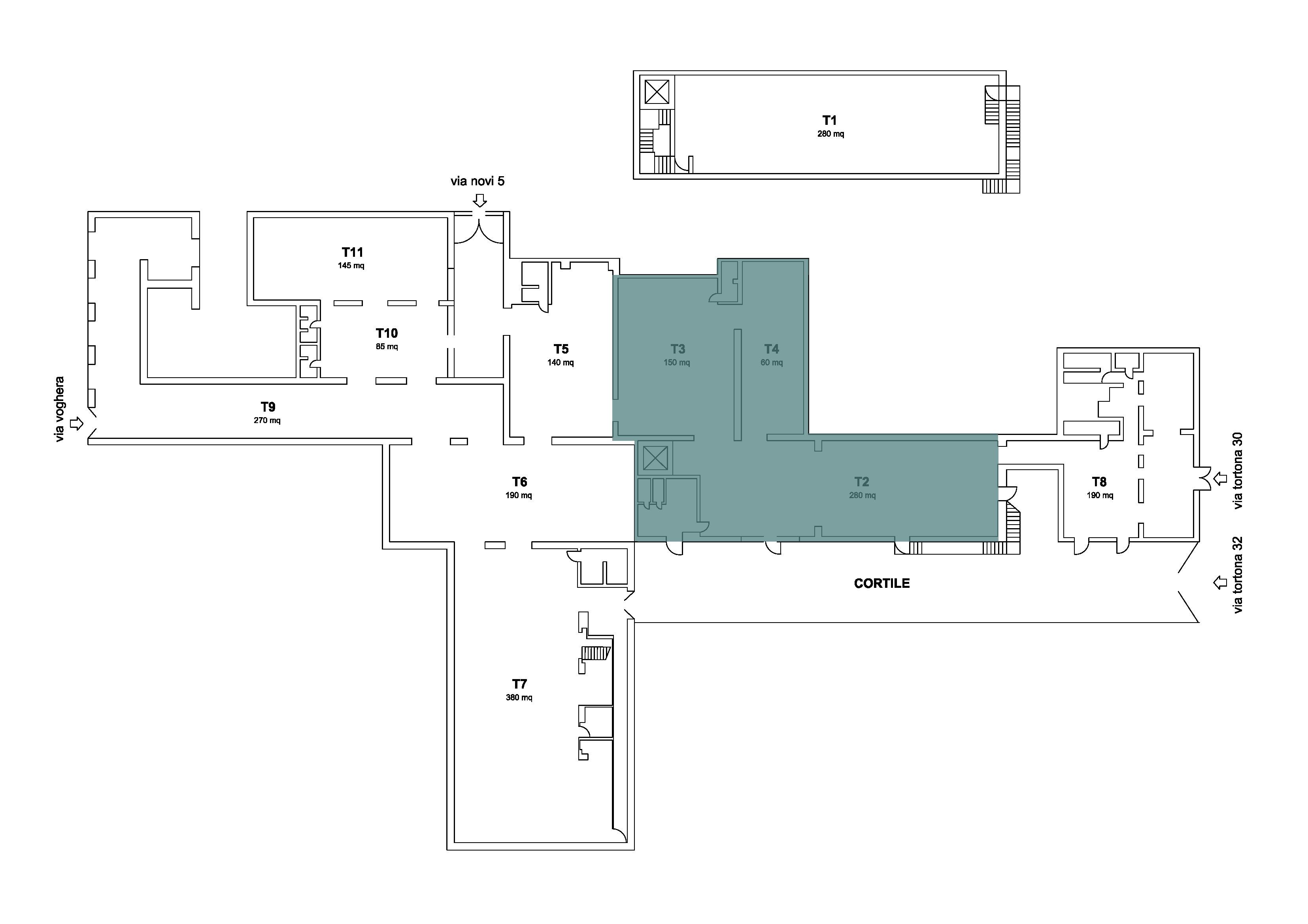
TOTAL WHITE  1_ SPAZI T2+T3+T4_460 mq

DESCRIZIONE:

  • T2_ 280 mq. conferenza / presentazione prodotto/area catering
  • T3_150 mq. conferenza / presentazione prodotto/area catering
  • T4_60 mq.  presentazione prodotto/guardaroba/ back/appoggio catering

CARATTERISTICHE:

  • Ingresso cortile Via Tortona 32
  • Cortile in condivisione
  • 460 mq.
  • Piano Terra
  • Wifi alta velocità
  • 3 bagni piano terra
  • A/C
  • Impianto luci di base
  • Impianto anti-incendio
  • Potenza: 60 Kw