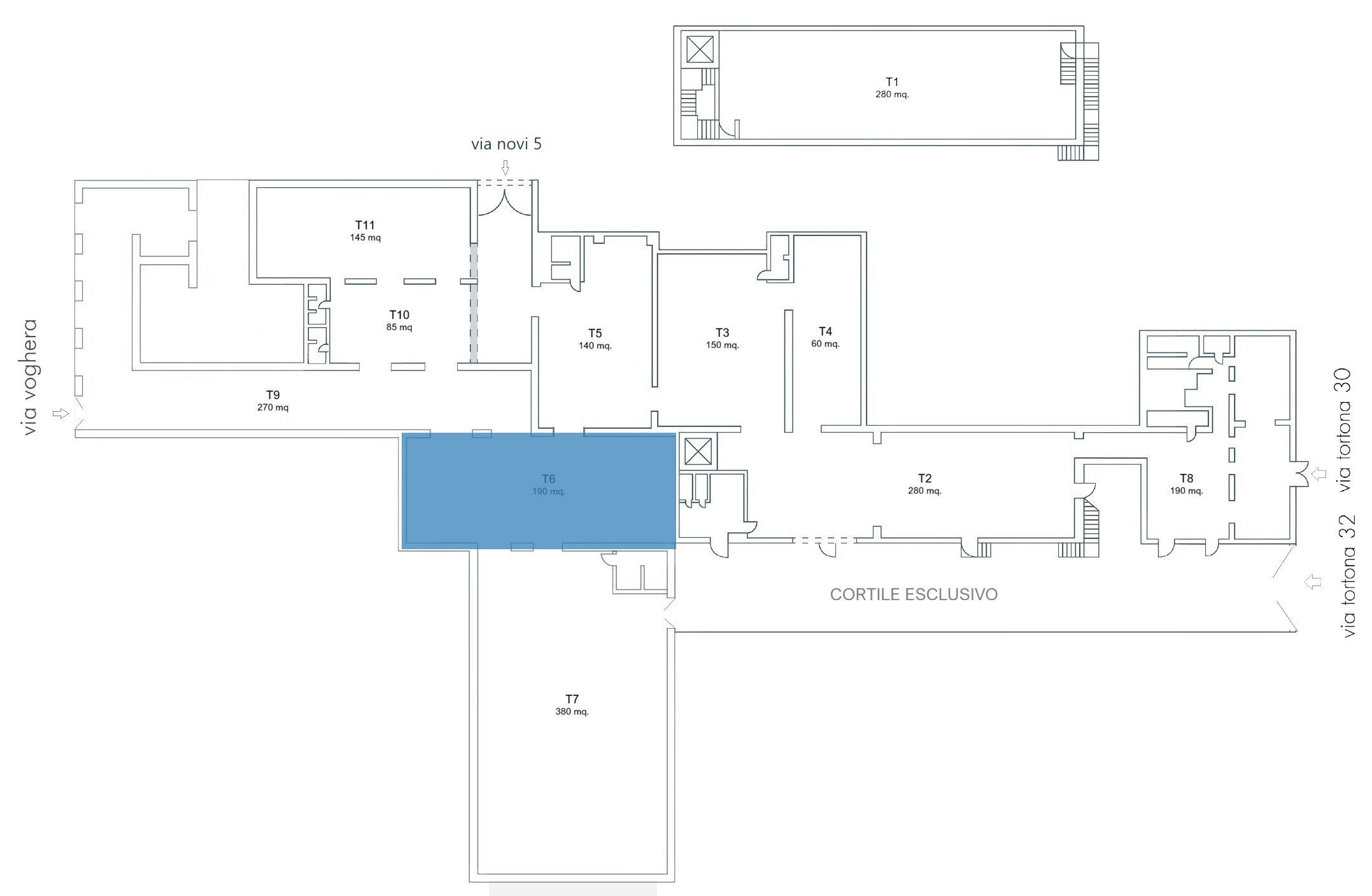
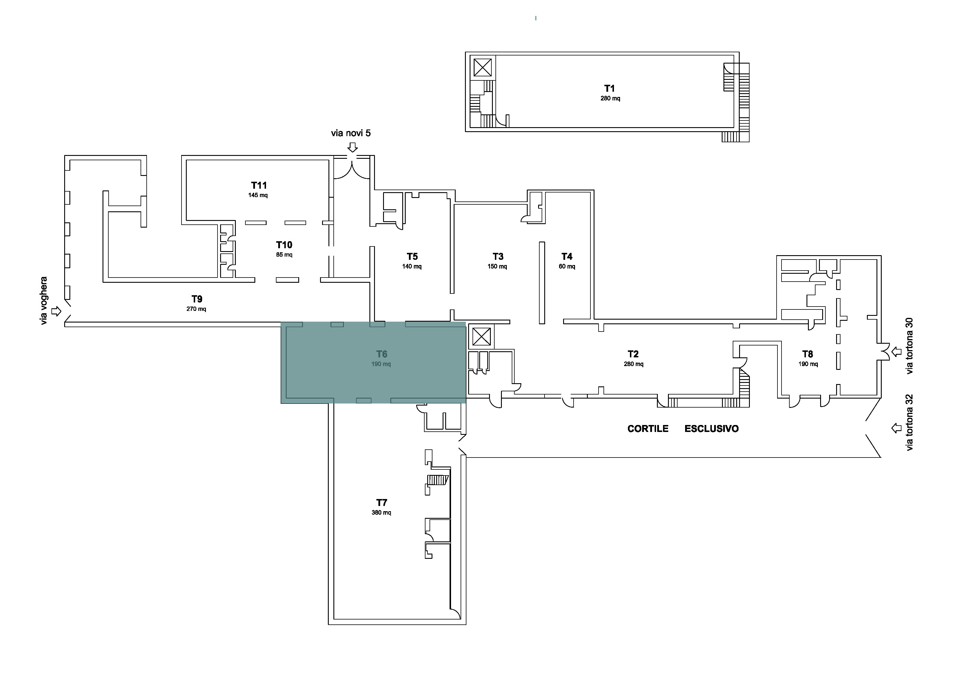
T10

T10 è una armoniosa location Industriale situata al pianoterra, un tempo era luogo per la rifinitura dei metalli e numerosi operai si alternavano sui macchinari.

Il lucernario ampio e maestoso dona un’atmosfera radiosa a tutto lo spazio.

L’entrata si affaccia su Via voghera 25/a piccola, graziosa e tranquilla via che dà sulla dinamica Via Tortona, nel cuore pulsante di Zona Tortona.

CARATTERISTICHE

  • 2 servizi Uomo/Donna
  • Wi-Fi
  • Impianto anti-incendio

 

DIMENSIONI E CAPIENZA

  • Superficie netta: 80 mq
  • Altezza massima 3,80 m 
  • Standing: 160 pax
  • Sitting: 125 pax

 

DOTAZIONI

  • Impianto autonomo di condizionamento / riscaldamento
  • Illuminazione​

 

SCHEDA TECNICA ELETTRICITÀ 

  • 4 prese CEE 16 A 220 volt
  • 2 prese CEE 32 A 380 volt (3P + T)
  • 8 prese civili