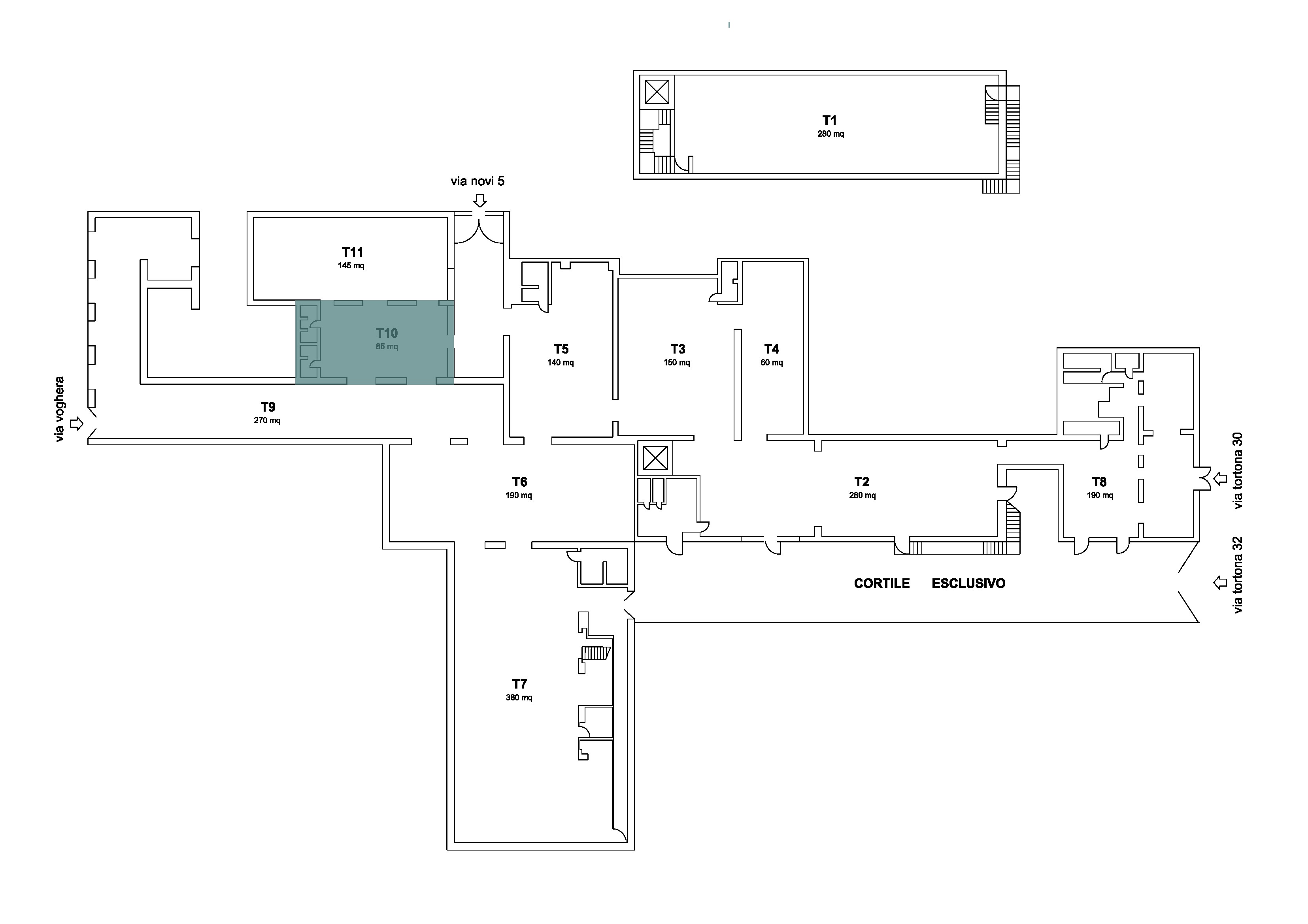
T10 - Space

FEATURES:

  • Capacity (50 pax seated_ 70 pax standing)
  • Ground Floor
  • High-speed WiFi
  • 3 bathrooms on the ground floor
  • A/C
  • Basic lighting system
  • Fire protecion system
  • Power : 60 Kw

DIMENSIONS:

  • Net area: 85 smq
  • Gross area: 100 smq
  • Maximum height: 3.8 m