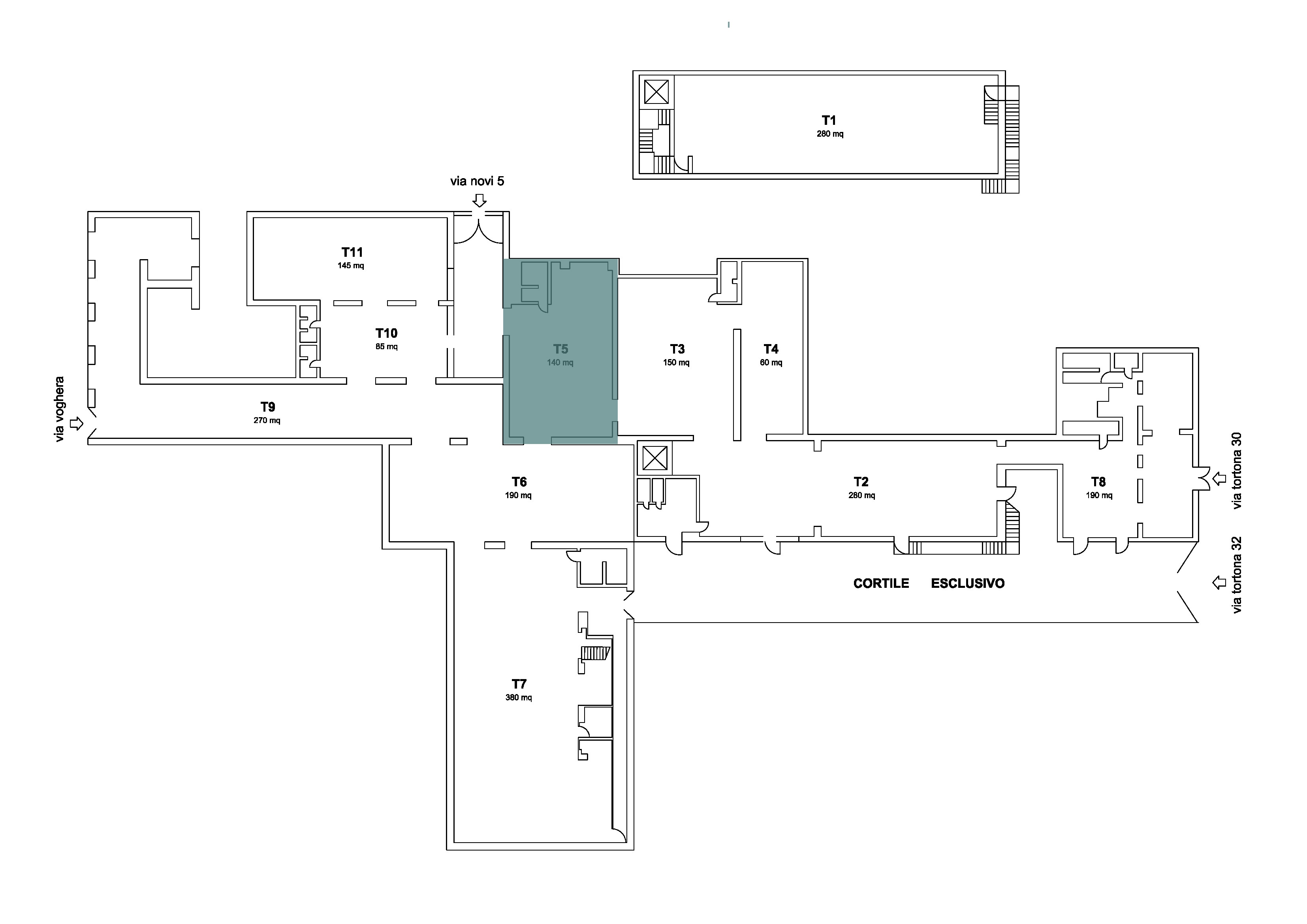
T5 - Space

FEATURES:

  • Capacity (100 pax seated_ 120 pax standing)
  • Ground Floor
  • High-speed WiFi
  • 1 bathrooms on the ground floor
  • A/C
  • Basic lighting system
  • Fire protection system
  • Power : 90 Kw
  • Water loading and unloading point

DIMENSIONS:

  • Net area: 140 mq
  • Gross area: 160 mq
  • Maximum height: 5 m

ELECTRICITY DATA:

  • 4 16 A 220 V CEE sockets
  • 2 32 A 380 V CEE sockets (3P+N+E)
  • 4 domestic sockets