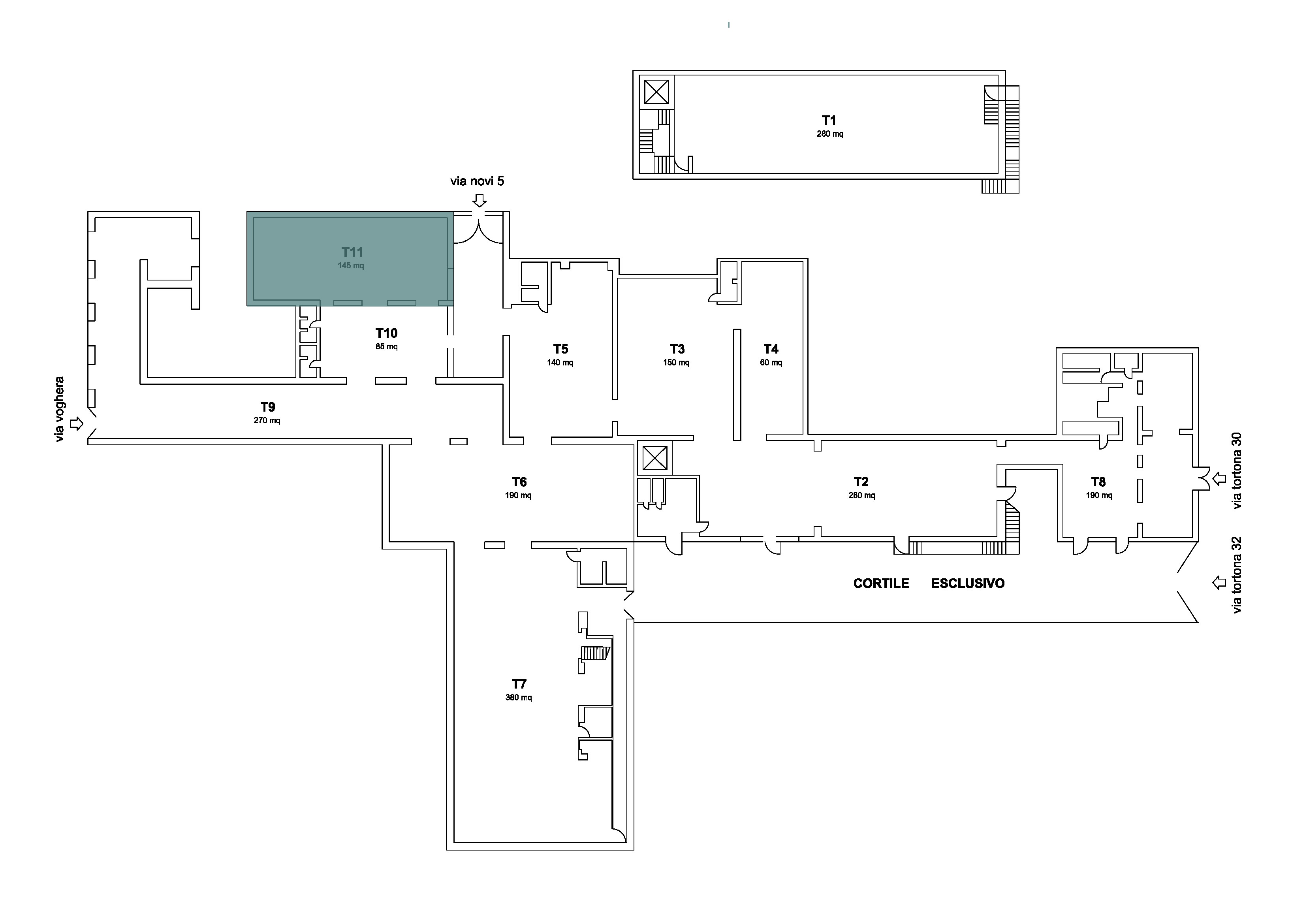
T11 - Space

FEATURES:

  • Capacity (100 pax seated_ 120 pax standing)
  • Ground Floor
  • High-speed WiFi
  • A/C
  • Basic lighting system
  • Fire protection system
  • Power : 60 Kw
  • Water loading and unloading point

DIMENSIONS:

  • Net area: 145 smq
  • Gross area: 160 smq
  • Maximum height: 3.7 m