FEEL
YOUR SPACE
HOME
ABOUT US
VENUE
OUR SPACES
T1
T2
T3
T4
T5
T6
T7
T8
T9
T10
T11
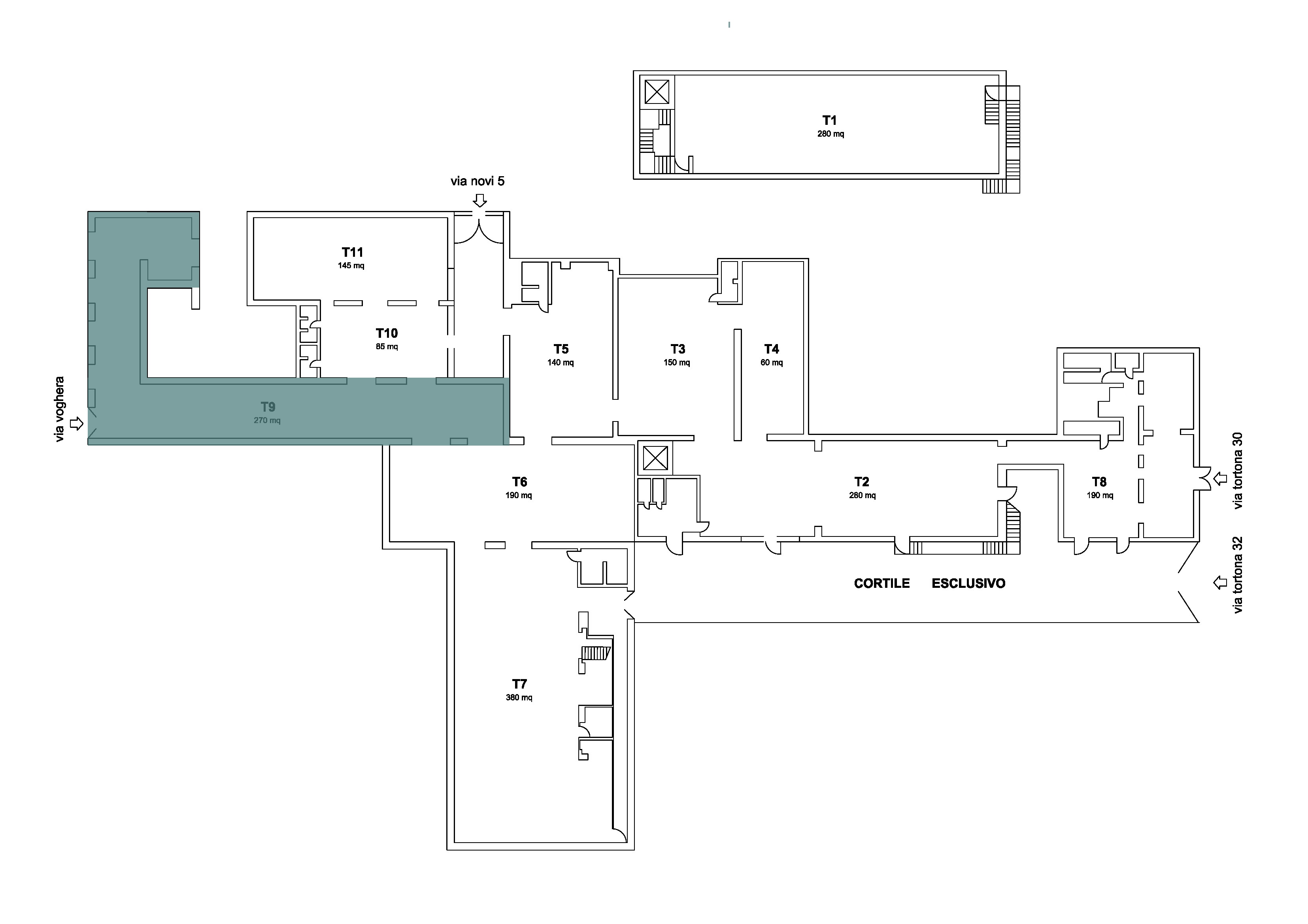
PLANIMETRIA COMPLESSO TORNERIA
COMBINATIONS
COMBINATIONS
TOTAL WHITE 1_
460 MQ
TOTAL WHITE 2_
560 MQ
TOTAL WHITE 3 _
640 MQ
TOTAL WHITE 5_
770 MQ
TOTAL WHITE 6_
850 MQ
TOTAL WHITE 8_
1720 MQ
TOTAL WHITE 9_
2200 MQ
TOTAL WHITE 4_
720 MQ
TOTAL WHITE 7_
1220 mq
SERVICES
PORTFOLIO
CONTACTS
ENGLISH
ITALIANO
EN
IT
Previous
Next
LOCATION
T9- Space
T9- Space
Planimetry of Space T9
Planimetry of Torneria Location
FEATURES:
Ground Floor
High-speed Wi-Fi
A/C
Basic lighting system
Fire protection system
Power: 60 Kw
DIMENSIONS:
Net area: 270 sq m
Gross area: 300 sq m
Maximum height: 4 m
Planimetry of Space T9
Planimetry of Torneria Location
×