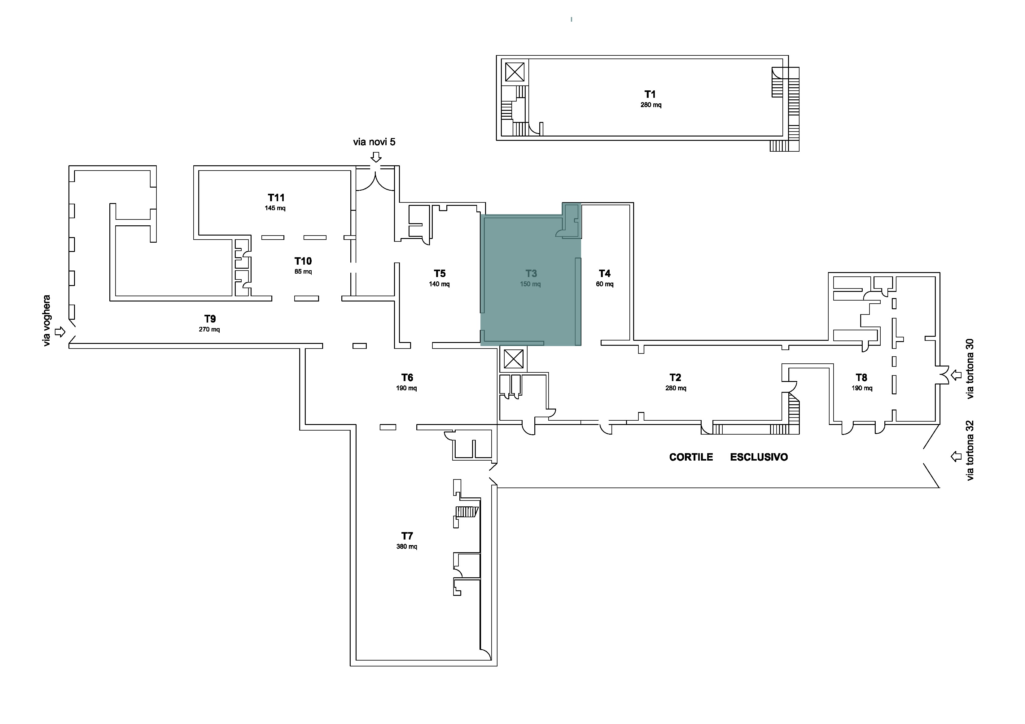
T3 - Space

FEATURES:

  • Capacity (100  pax seated + 250 pax standing)
  • Ground Floor
  • High-speed Wi-Fi
  • 1 bathroom on the ground floor
  • A/C
  • Basic lighting system
  • Fire protection system
  • Power: 60 Kw

 

DIMENSIONS:

  • Net area: 150 sqm
  • Gross area: 168 sqm
  • Maximum height: 5 m